Über uns

Sind Sie auf der Suche nach einer Möglichkeit, Ihre Skizzen, Vorstellungen oder vorhandenen Unterlagen in professionelle technische Zeichnungen umzusetzen?

Die Baupläne von Bestandsgebäuden existieren oft nur in Papierform. Für Baumaßnahmen, Instandsetzung, Renovierung, Verwaltung von Mieteinheiten oder andere Zwecke werden jedoch CAD-Pläne benötigt.

Das KIELER-CAD Zeichenbüro erstellt professionelle und hochwertige technische Zeichnungen aus Ihren Vorlagen. Unser Unternehmen bietet Ihnen eine professionelle Digitalisierung Ihrer Baupläne für viele Anwendungsfälle an, z.B. für Genehmigungsplanungen oder Fertigungszeichnungen, um Ihnen Zeit und Mühe zu ersparen. Dank unserer Erfahrung und modernster Software können wir Ihre Pläne digitalisieren und als PDF, DWG, DXF und in weiteren Formaten bereitstellen. Wir prüfen Ihre Unterlagen und erarbeiten daraus eine individuelle Lösung, die genau zu Ihrem Unternehmen und Ihrem Ziel passt.  

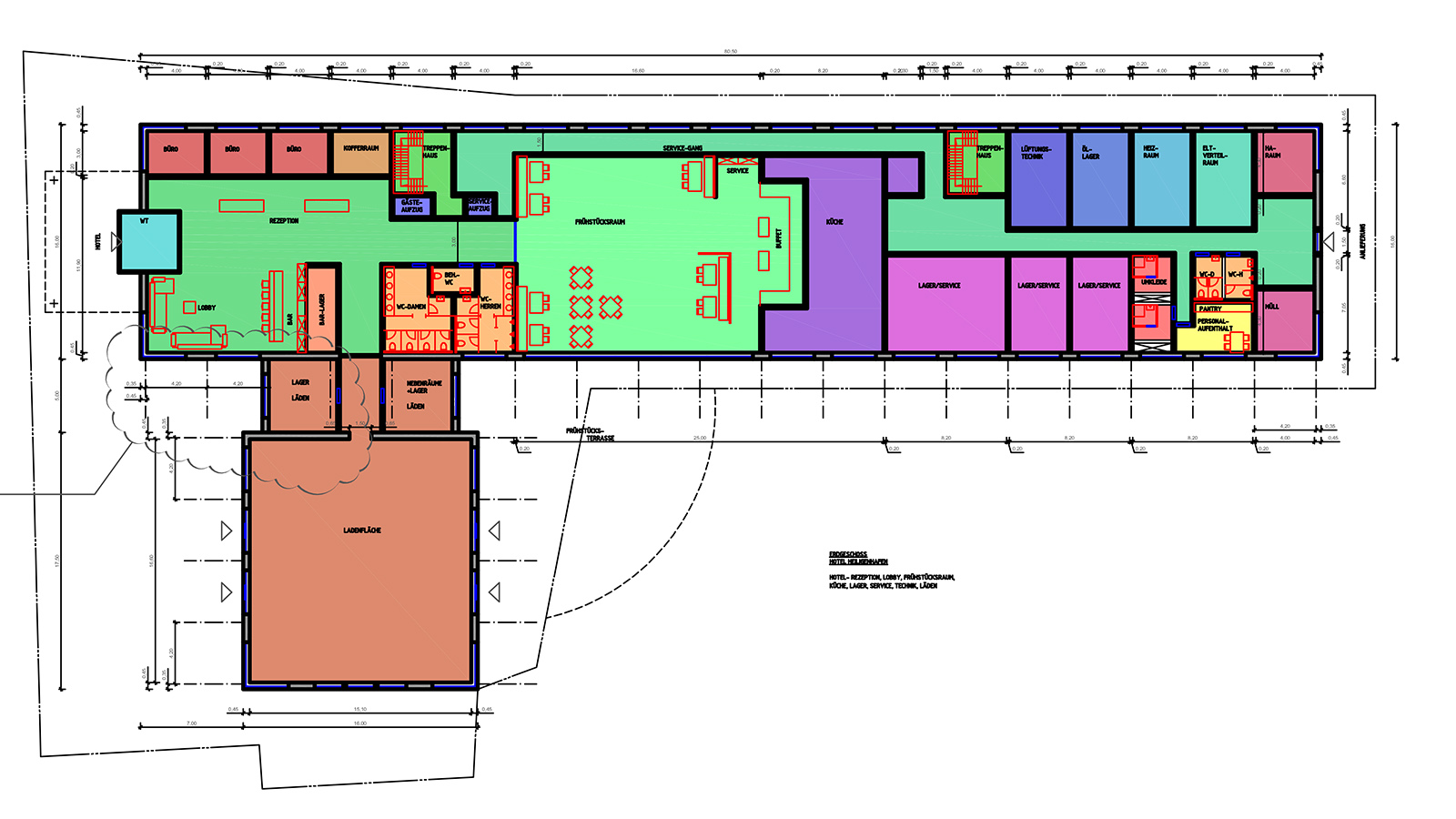
Unser Spektrum ist vielfältig und umfasst unter anderem: Konstruktionszeichnungen im Einrichtungsbereich beim Bau von Megayachten, Darstellung und Ausführungszeichnungen, die Umsetzung von Designvorgaben in Genehmigungszeichnungen, die Ausarbeitung von Detailkatalogen, kundenspezifische Fertigungszeichnungen, Entwurfsplanung, Nettoraumplanung, Erstellung von Dokumentationen und Ablieferungsunterlagen. Auch Konstruktionspläne im Möbelbau / Hospitality Design und Grundrisspläne gehören dazu. 

Kontakt

Stadtparkweg 12, 24106 Kiel
Tel. 0431 99017682 
mail@kieler-cad.de

Bürozeiten:
Mo. – Mi. + Fr.: 09.00 – 13.00 Uhr

Referenzen (Auswahl)

Muster 5
Muster 2
Muster 3
Muster 4
Muster 1
  • Darstellung und Ausführungszeichnungen im Passagierbereich eines Cruise Liners
  • Fertigungszeichnungen im B-Bereich und A-Bereich einer Mega Yacht
  • Nettoraumplanung für eine Mega Yacht
  • Umsetzung von Designvorgaben in Genehmigungszeichnungen für einen Cruise Liner
  • Ausarbeitung von Detailkatalogen und kundenspezifische Fertigungszeichnungen für einen Cruise Liner
  • Konstruktionsarbeiten im Einrichtungs- und schiffbaulichen Ausrüstungsbereich für einen Doppelhüllen-Bunkertanker
  • Erstellung von Ablieferungsunterlagen und technische Dokumentation
  • Fertigungszeichnungen für eine Beach-Club- Bar und Tender Bay im B-Bereich einer Mega Yacht